Como é a Planta de Uma Quitinete? Vantagens, Desvantagens e Diferenças Entre Elas e Apartamentos de 1K e 1DK!
Uma quitinete é uma planta típica para pessoas que moram sozinhas. No entanto, muitas pessoas podem estar se perguntando: “Como exatamente é a planta de uma quitinete?”, “Quais são as diferenças entre elas e apartamentos de 1K e 1DK?” e “Quais são as vantagens e desvantagens de uma quitinete?”
Neste artigo explicaremos as características da planta de uma quitinete, as diferenças entre elas e apartamentos de 1K e 1DK, assim como suas vantagens e desvantagens. Se você estiver se perguntando que tipo de planta escolher para morar sozinho, use este artigo como referência.
Na Village House nós oferecemos mais de 1.000 imóveis a preços acessíveis em todo o Japão. Se você estiver procurando um apartamento, não deixe de conferir nosso site.
Quais os Tamanhos Convencionais de Quitinetes e Tipos de Planta?

Uma quitinete (One-Room) refere-se a uma disposição onde o espaço da cozinha e a sala de estar/quarto não ficam separados. Portanto, não há portas ou divisórias, exceto para o lavabo e o banheiro. Além disso, as quitinetes às vezes são anunciadas como “1R”. As quitinetes (One-Room) com área total superior a 100m2 são denominadas apartamento-quitinetes.
Plantas comuns de quitinetes
Aqui, apresentaremos cinco plantas comuns para quitinetes. Vamos dar uma olhada na disposição dos quartos e nos estilos de vida aos quais eles são adequados.
- Tipo Corredor(A)

As quitinetes do tipo corredor (A) possuem uma planta com instalações como unidade de banheiro (UB) ou armário (CL) em ambos os lados da entrada. É um tipo de planta muito comum para quitinetes e apartamentos 1K. A característica difernte é um corredor criado entre as instalações colocadas em ambos os lados da entrada.
No entanto, como a cozinha fica localizada no interior do cômodo principal, existe a possibilidade de acumulação de odores no interior. Portanto, ao visitar o imóvel, é uma boa ideia verificar a eficiência da ventilação e se é possível manter o fluxo de ar adequado. A planta tipo corredor (A) é adequada para quem cozinha frequentemente em casa.
- Tipo Corredor(B)

Se você preferir ter um chuveiro e sanitário separados em vez de uma unidade única de banheiro, ou se você não cozinha com tanta frequência, recomendamos o tipo corredor (B). Como as instalações ficam concentradas perto da entrada, incluindo vestiário e banheiro e sanitário separados, o cômodo principal é menor que o tipo corredor (A).
- Tipo Ultracompacto

Em áreas urbanas nobres, há uma tendência de plantas ultracompactas serem mais comuns. Estas propriedades são muitas vezes construídas em pequenos lotes de terreno em áreas desejáveis, resultando em divisões muito pequenas ou de formato irregular.
Além do tamanho limitado do cômod principal, essas unidades também podem ter pouca exposição à luz solar, por isso é importante inspecioná-las pessoalmente, em vez de depender apenas das plantas baixas.
Imóveis ultracompactos são recomendados para pessoas que priorizam a localização em vez do conforto e para aqueles que gostam de criar seu próprio espaço interior exclusivo.
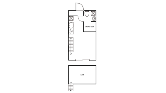
- Tipo Loft

O tipo loft é uma boa opção para quem quiser levar um estilo de vida minimalista ou simples. Embora economize espaço, também possui uma área de loft separada da área de estar, onde você pode relaxar confortavelmente.
Além disso, as plantas do tipo loft tendem a ser localizados em áreas com boas localizações. Esta planta é recomendada para pessoas que comem fora com frequência ou não têm visitas em casa frequentemente.
- Tipo Espaçoso

Existe uma percepção comum de que as quitinetes são pequenas e apertadas. No entanto, as quitinetes de tipo espaçoso têm plantas impressionantemente espaçosas. Por haver uma cozinha separada em estilo balcão, é possível dividir a área de estar.
Ter uma porta entre a entrada e o cômodo principal cria privacidade e também pode ajudar a proteger cointra o frio do inverno. Além disso, os estúdios do tipo espaçoso são relativamente comuns em áreas mais afastadas do centro da cidade e, apesar do amplo espaço interior, tendem a ter aluguel acessível.
No entanto, as quitinetes do tipo espaçoso podem estar localizadas longe da estação mais próxima ou exigir um carro para se locomover, portanto, verifique a localização antes de considerar um.
As Diferenças Entre Quitinetes (One-Room) e Apartamentos de 1K

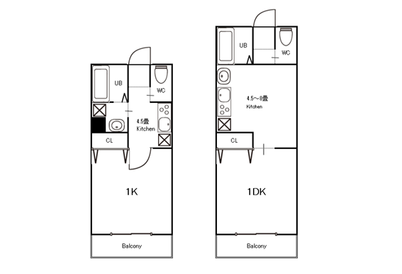
A planta de uma quitinete (One-Room) não possui cozinha separada da sala de estar. Por outro lado, “1K” refere-se a uma planta onde o espaço da cozinha é separado da sala/quarto. Um apartamento 1K tem um espaço de cozinha com menos de 4,5 tatames.
A Diferença Entre Apartamentos 1K e 1DK

A diferença entre 1K e 1DK é o tamanho da cozinha.
Um espaço de cozinha de um apartamento 1K tem menos de 4,5 tatames de tamanho, enquanto um espaço de cozinha 1DK tem entre 4,5 tatames e 8 tatames de tamanho. Além disso, muitos apartamentos 1DK tendem a ser mais antigos e, com condições econômicas mais vantajosas, você poderá encontrar imóveis com aluguéis semelhantes aos das unidades 1K.
Julgando uma Quitinete Pelo Seu Tamanho

Ao considerar quitinetes, julgue com base no tamanho do quarto (área útil). Ver medidas como 6,5 ou 8 tatames pode fazer você pensar que é espaçoso.
No entanto, o tamanho da quitinete inclui a cozinha e a entrada. Portanto, uma quitinete rotulada com um tamanho de 6,5 tatames terá uma área útil real de cerca de 4,5 tatames, enquanto um apartamento rotulado com o tamanho de 8 tatames terá um espaço real de cerca de 6 tatames, tornando-o ainda menor do que você esperava.
Por outro lado, em um apartamento 1K, o espaço da cozinha e a sala/quarto são separados, então se estiver rotulado como 8 tatames, o quarto excluindo o espaço da cozinha será de 8 tatames, garantindo uma sensação de mais espaço.
Quitinetes Podem te Ajudar a Economizar! As Maiores Vantagens das Quitinetes

Aluguel baixo
As quitinetes tendem a ter aluguéis mais baratos em comparação com 1K e 1DK. Mesmo que o tamanho seja quase igual ao de 1K, o aluguel de uma quitinete costuma ser mais baixo. Se você deseja manter seu aluguel baixo para economizar dinheiro, uma quitinete é recomendada.
Não há repartições para uma sensação de amplitude
Não existem divisórias ou portas entre o espaço da cozinha e a área de estar, criando um espaço aberto. Para quem não gosta da sensação de isolamento de um apartamento 1K, recomenda-se uma quitinete. Além disso, ser capaz de supervisionar toda a sala de relance proporciona tranquilidade em termos de segurança.
Diferença mínima de temperatura dentro do apartamento
Uma característica das quitinetes é a ausência de divisórias, criando um espaço único e resultando em diferenças mínimas de temperatura dentro do ambiente. Além disso, ao ligar o ar condicionado, o ar se espalha por todo o ambiente, facilitando a regulação da temperatura.
Fácil de limpar
Outra vantagem de uma quitinete é que você pode limpar o ambiente apenas com um aspirador de pó. Uma quitinete é recomendada para pessoas que desejam manter o quarto limpo ou não querem perder muito tempo limpando.
Analize se uma Quitinete Funciona Para Você

Quando você abre a porta, você pode ver o interior
Uma desvantagem das quitinetes é que não existem divisórias ou portas, fazendo com que a área de estar possa ser vista assim que se abre a porta da frente. Ao lidar com entregadores na porta da frente, seu espaço privado pode ser visto, o que pode ser estressante para quem não quiser que seu interior seja visto.
Os cheiros de cozinha se espalham facilmente pelo apartamento
Como há uma cozinha no mesmo cômodo, cozinhar encherá todo o cômodo com o cheiro de comida. Medidas como instalar ventiladores ou abrir janelas para ventilação são necessárias para evitar que os odores da cozinha se agarrem às roupas, cortinas e outros itens do ambiente.
A temperatura interna muda facilmente quando a porta é aberta
Numa quitinete, como a porta da frente está imediatamente interligada ao quarto, a abertura da porta permite a entrada de ar exterior, fazendo com que a temperatura interior se altere facilmente. Portanto, é importante estar atento ao entrar no ambiente para evitar a entrada de ar externo.
Muitos imóveis são pequenos
Como mencionado anteriormente, a medida em tatames indicadas para quitinetes inclui a cozinha e o corredor. Portanto, mesmo que seja rotulado como 6 tatames, na realidade, apenas cerca de 4 tatames podem estar disponíveis para uso como espaço residencial. Embora seja compacto e fácil de organizar, aqueles com muitos pertences podem considerá-la desvantajosa, pois móveis, eletrodomésticos e roupas podem não caber como desejado.
Embora as quitinetes tenham a vantagem do aluguel barato, elas também apresentam algumas desvantagens a serem consideradas. Porém, dependendo de como você a utiliza e do tipo de planta, é possível morar confortavelmente em uma quitinete.
Se você estiver procurando imóveis para alugar, confira o site da Village House. Oferecemos uma ampla seleção de imóveis a preços acessíveis a partir de 20.000 ienes de aluguem por todo o Japão.
Artigos relacionados:
- Como é a Planta de Uma Quitinete? Vantagens, Desvantagens e Diferenças Entre Elas e Apartamentos de 1K e 1DK!
- 20 Minutos de Caminhada Até a Estação é Muito Longe? Descubra se um Apartamento Mais Distante é a Escolha Certa Para Você!
- Remorsos de Locadores: Os 5 Maiores Remorsos que as Pessoas Têm ao Alugar Apartamentos Caros
- Plantas de Apartamentos Adequados Para Casais – Encontre o Melhos Para você!
- Procurando uma casa nova? Evite estas plantas baixas de apartamentos!

Olá, sou Machiko Doi, redatora freelancer que escreve sobre residência e vida no Japão.
Moro em uma casa de 80 anos que herdei dos meus avós com meus dois gatos de abrigos e minha filha.
Vivemos uma vida tranquila enquanto consertamos a casa.
Gosto de cozinhar legumes da horta e peixe fresco pescado pelo meu pai, e degustá-los com cerveja gelada nos dias quentes ou saquê quente nos dias frios.
