Chi tiết mặt bằng căn hộ studio – Ưu nhược điểm và sự khác biệt giữa căn hộ 1K và 1DK
Căn hộ studio là lựa chọn phổ biến cho những người sống độc thân. Tuy nhiên, nhiều bạn có thể đang thắc mắc “Bố trí mặt bằng căn hộ studio là như thế nào?”, “Điểm khác biệt giữa căn hộ 1K và 1DK là gì?”, hay “Ưu nhược điểm của căn hộ studio là gì?”.
Bài viết này sẽ giải thích đặc điểm bố trí của căn hộ studio, sự khác biệt giữa căn hộ 1K và 1DK, cũng như ưu nhược điểm của từng dạng căn hộ. Nếu còn đang phân vân chọn kiểu nhà ở nào để sống một mình, hãy tham khảo bài viết này nhé.
Village House có hơn 1.000 căn hộ cho thuê giá rẻ trên khắp nước Nhật. Nếu đang tìm chỗ ở, hãy truy cập trang web của chúng tôi.
Diện tích và bố trí mặt bằng thường thấy của căn hộ studio

Căn hộ studio (một phòng) là kiểu bố trí mặt bằng không phân chia khu phòng bếp và phòng khách. Do đó, ngoại trừ nhà vệ sinh và phòng tắm thì cả căn hộ không có cửa hay vách ngăn nào. Căn hộ dạng studio đôi khi còn được viết tắt là “1R”. Căn hộ studio có tổng diện tích trên 100m² được gọi là căn hộ kiểu studio.
Các kiểu bố trí mặt bằng thường gặp của căn hộ studio
Bây giờ, chúng ta sẽ cùng điểm qua 5 kiểu bố trí phổ biến của căn hộ studio. Hãy xem qua cách bố trí mặt bằng và phong cách sống phù hợp với từng kiểu nhé.
- Kiểu hành lang(kiểu A)

Căn hộ Kiểu hành lang (Kiểu A) thường bố trí các tiện ích như bồn tắm tích hợp (unit bath – UB) hoặc tủ quần áo (closet – CL) nằm hai bên lối vào. Đây là kiểu bố trí rất phổ biến cho dạng căn hộ studio và căn hộ 1K. Đặc điểm nổi bật của kiểu mặt bằng này là các tiện ích hai bên tạo thành một hành lang ở lối vào.
Tuy nhiên, do bếp nằm trong phòng nên có khả năng bị ám mùi thức ăn. Vì vậy, khi xem nhà, bạn nên kiểm tra khả năng thông gió và lưu lượng gió có đủ lưu thông không khí không. Bố trí mặt bằng Kiểu hành lang (Kiểu A) phù hợp với những ai thường xuyên nấu ăn ở nhà.
- Kiểu hành lang(kiểu B)
Nếu thích phòng tắm và toilet riêng biệt hoặc nếu không phải là người thường xuyên nấu ăn, thì bạn nên chọn dạng mặt bằng kiểu Hành lang kiểu B. Các tiện ích như phòng thay đồ, phòng tắm và nhà vệ sinh riêng biệt được bố trí gần lối vào, khiến diện tích phòng khách nhỏ hơn so với kiểu mặt bằng Hành lang kiểu A.

- Kiểu siêu nhỏ gọn

Ở những khu vực đô thị sầm uất, các căn hộ siêu nhỏ gọn (ultra-compact) thường xuất hiện nhiều hơn. Những căn hộ này thường được xây dựng trên những lô đất nhỏ ở các khu vực đắt đỏ, dẫn đến diện tích phòng rất nhỏ hoặc có hình dạng không vuông vức.
Ngoài diện tích phòng hạn chế, những căn hộ này đôi khi còn có hạn chế về ánh sáng tự nhiên, vì vậy bạn nên đến tận nơi để xem thay vì chỉ nhìn vào sơ đồ mặt bằng.
Dạng căn hộ siêu nhỏ gọn phù hợp với những người ưu tiên vị trí hơn sự thoải mái và những người thích tự tạo không gian sống độc đáo cho mình.
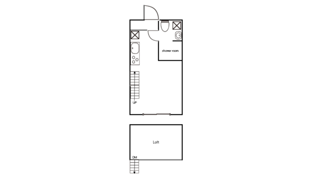
- Kiểu phòng Loft
Kiểu phòng Loft là lựa chọn tuyệt vời cho người theo đuổi phong cách sống tối giản. Thiết kế này tiết kiệm diện tích nhưng vẫn có thêm khu vực gác xếp tách biệt với không gian sinh hoạt, giúp bạn thoải mái nghỉ ngơi thư giãn.

Hơn nữa, những căn hộ có bố trí dạng loft thường cũng nằm ở vị trí đẹp. Mặt bằng này phù hợp với những người thường hay ăn ngoài và ít khi mời bạn bè tới nhà.
- Kiểu rộng rãi
Nhiều người có suy nghĩ căn hộ studio thường nhỏ và chật chội. Tuy nhiên, căn hộ studio kiểu rộng rãi lại có bố trí mặt bằng cực kỳ ấn tượng. Bếp được thiết kế dạng quầy đảo, giúp phân chia không gian sinh hoạt.

Cửa ngăn giữa lối vào và phòng khách cũng giúp tạo sự riêng tư và giúp giữ ấm vào mùa đông. Thêm nữa, dạng studio có kiểu mặt bằng rộng rãi thường chỉ có ở những khu vực xa trung tâm thành phố, nên giá thuê lại khá phải chăng dù diện tích rộng rãi.
Tuy vậy, kiểu mặt bằng này thường ở khu không gần nhà ga, hoặc cần phải có xe oto để đi lại, do đó nhớ kiểm tra kỹ vị trí trước khi cân nhắc chọn thuê dạng căn hộ này.
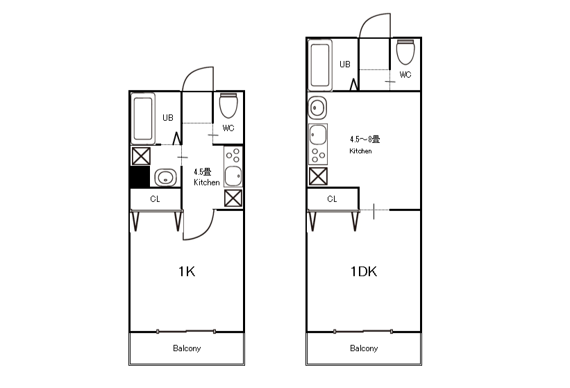
Sự khác biệt giữa căn hộ studio (một phòng) và căn hộ 1K

Căn hộ Studio (một phòng) thì phòng bếp và phòng khách không được ngăn cách. Trong khi đó, căn hộ “1K” lại là kiểu bố trí có phòng bếp được ngăn tách biệt với phòng khách. Diện tích phòng bếp trong căn hộ 1K thường nhỏ hơn 4.5 chiếu tatami.
Sự khác biệt giữa căn hộ 1K và 1DK

Điểm khác biệt giữa căn hộ 1K và 1DK chính là kích thước phòng bếp.
Bếp trong căn hộ 1K nhỏ hơn 4.5 chiếu tatami, còn bếp trong căn hộ 1DK có diện tích từ 4.5 đến 8 chiếu tatami. Hơn nữa, nhiều căn hộ 1DK thường cũ hơn, và do điều kiện kinh tế thoải mái hơn nên giá thuê của chúng có thể tương đương với căn hộ 1K.
Làm thế nào để đánh giá căn hộ studio theo diện tích

Diện tích (mặt bằng) là yếu tố quan trọng khi đánh giá căn hộ studio. Khi thấy thông tin diện tích phòng tầm 6.5 hoặc 8 chiếu tatami sẽ có thể khiến bạn nghĩ phòng khá rộng rãi.
Nhưng lưu ý rằng diện tích phòng studio đã bao gồm cả bếp và lối vào. Vì vậy, một căn hộ studio ghi diện tích 6.5 chiếu thì diện tích sinh hoạt thực tế chỉ khoảng 4.5 chiếu, còn phòng 8 chiếu thì diện tích sinh hoạt chỉ khoảng 6 chiếu tatami, có thể nhỏ hơn nhiều so với bạn tưởng tượng.
Ngược lại, với căn hộ 1K, bếp và phòng khách được tách riêng, do đó nếu ghi diện tích là 8 chiếu thì phòng khách sẽ là 8 chiếu, không tính bếp, tạo cảm giác rộng rãi hơn.
Căn hộ studio giúp tiết kiệm tiền – Ưu điểm của căn hộ studio

Giá thuê rẻ
Thuê căn hộ studio thường rẻ hơn thuê căn hộ 1K hay 1DK. Ngay cả khi có diện tích gần bằng 1K thì giá thuê căn hộ studio vẫn thường rẻ hơn. Nếu muốn tiết kiệm chi phí thuê nhà thì căn hộ studio là lựa chọn hợp lý.
Không gian không vách ngăn, thoáng đãng
Không có vách ngăn hay cửa giữa bếp và phòng khách, tạo cảm giác rộng rãi, thoải mái. Căn hộ studio là lựa chọn tuyệt vời cho những ai không thích cảm giác bí bách của dạng căn hộ 1K. Ngoài ra, việc có thể quan sát toàn bộ căn phòng cũng giúp an tâm hơn về an ninh.
Nhiệt độ ổn định trong toàn bộ phòng
Ưu điểm của căn hộ studio là không có vách ngăn, khiến cả căn hộ là một không gian duy nhất giúp nhiệt độ phòng ít bị chênh lệch ở những khu vực phòng khác nhau. Khi mở điều hòa thì mát cả phòng, siêu tiện lợi để điều chỉnh nhiệt độ.
Dễ dọn dẹp
Một ưu điểm nữa là bạn chỉ cần dùng máy hút bụi là có thể lau dọn toàn bộ phòng. Căn hộ studio phù hợp với những người thích phòng sạch sẽ hoặc không muốn tốn nhiều thời gian dọn dẹp.
Nhược điểm cần lưu ý của căn hộ studio: Liệu bạn có hợp với kiểu bố trí căn hộ studio không?

Mở cửa phòng là thấy hết toàn bộ phòng
Nhược điểm của căn hộ studio là không có vách ngăn hay cửa nên vừa mở cửa chính là thấy ngay không gian sinh hoạt. Khi phải nhận đồ delivery thì hơi bất tiện vì người giao hàng có thể thấy hết đồ đạc bên trong, và với những ai hay ngại thì đây có thể là điểm trừ.
Mùi nấu nướng dễ dàng bám mùi cả căn phòng
Bếp nằm chung phòng nên việc nấu nướng sẽ khiến cả phòng tràn ngập mùi thức ăn. Bạn cần lắp đặt quạt thông gió hoặc mở cửa sổ để giúp khử mùi, tránh mùi bám vào quần áo, rèm cửa, …
Nhiệt độ phòng dễ thay đổi nếu cửa mở
Cửa ra vào của căn hộ studio thường nằm ngay phòng khách nên khi mở cửa, không khí bên ngoài tràn vào, khiến nhiệt độ phòng dễ thay đổi. Do đó, cần lưu ý khi ra vào để tránh gió lùa.
Nhiều phòng diện tích rất nhỏ
Như đã đề cập, diện tích chiếu tatami của dạng căn hộ studio thường đã tính cả bếp và hành lang. Vì vậy, dù ghi 6 chiếu nhưng thực tế chỉ còn khoảng 4 chiếu để sử dụng làm không gian sinh hoạt. Căn hộ studio tuy nhỏ gọn, dễ quản lý nhưng lại bất tiện cho những ai có nhiều đồ đạc vì khó bố trí nội thất, thiết bị và quần áo theo ý muốn.
Dù căn hộ studio có ưu điểm giá thuê rẻ nhưng chúng cũng có những nhược điểm nhất định. Tuy nhiên, tùy vào nhu cầu sử dụng và cách bố trí căn hộ, bạn vẫn có thể sống rất thoải mái trong căn hộ studio.
Nếu đang tìm nhà thuê, hãy truy cập trang web của Village House. Chúng tôi có rất nhiều dạng nhà cho thuê giá phải chăng, chỉ từ 20.000 yên trên khắp Nhật Bản.
Bài viết liên quan:
- Chi tiết mặt bằng căn hộ studio – Ưu nhược điểm và sự khác biệt giữa căn hộ 1K và 1DK
- 20 phút đi bộ đến ga có quá xa không? Tìm hiểu xem căn hộ cách ga đi bộ một đoạn có phù hợp với bạn không!
- Top 5 điều người thuê thấy hối tiếc khi thuê căn hộ đắt tiền
- Bố trí mặt bằng phù hợp cho cặp đôi sinh sống – Tìm hiểu đâu là mặt bằng phù hợp nhất cho bạn và người ấy!
- Đang tìm nhà mới? Tránh ngay những kiểu căn hộ này!

Xin chào, tôi là Machiko Doi, một nhà văn tự do viết về nhà ở và cuộc sống ở Nhật Bản.
Tôi sống trong một ngôi nhà 80 năm tuổi được thừa kế từ ông bà cùng với hai con mèo nhận nuôi và con gái của tôi.
Chúng tôi sống một cuộc sống thoải mái trong khi sửa chữa ngôi nhà này.
Tôi thích nấu rau hái từ vườn và cá tươi do bố tôi bắt được, thưởng thức chúng với bia lạnh vào ngày nóng hoặc rượu sake nóng vào ngày lạnh.
